| NIVEAU | PIÈCE | SURFACE |
- 265 m²
- 13 pièce(s)
- NC chambre(s)
- 170 m²
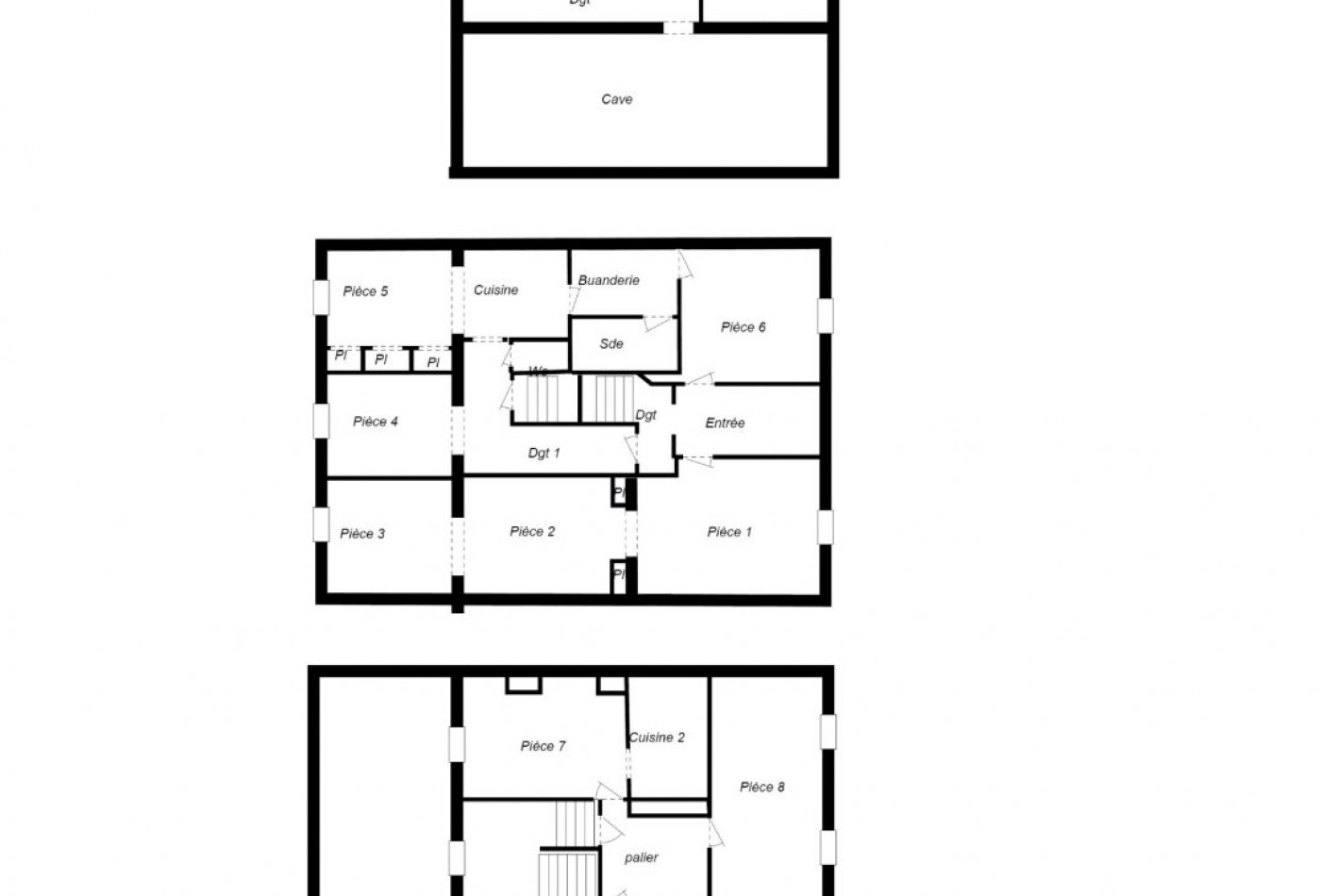
Exclusivité - Rare à la vente ! À deux pas du Peyrou, en plein centre historique de Montpellier, découvrez un ensemble immobilier de deux maisons de ville d'une superficie totale de 265 m2 avec jardin et terrasse.
DESCRIPTION
Maison principale : 198 m²
Grands volumes, charme préservé, fort potentiel.
Maison indépendante : 70 m²
Idéale pour famille, location, activité pro.
Jardin : env. 150 m²
Terrasse : 40 m²
Possibilité garage 20 m² en supplément (rare en centre-ville).
Bient entretenu, avec travaux à prévoir pour optimiser tout le potentiel.
POINTS FORTS
Emplacement Peyrou / Écusson, secteur très recherché.
Deux maisons indépendantes sur une même parcelle.
Extérieurs : jardin + grande terrasse, exceptionnel en centre-ville.
Accès faciles, proximité tram, commerces, écoles.
Plus d’infos et visite avec Casanova Immobilier au 06 28 52 22 95, expert en biens de caractère à Montpellier et sa région depuis plus de 45 ans.
Notre barème d'honoraires
* Honoraires charge vendeur.
À proximité de ce bien ...
Découvrez nos biens similaires ...
cette annonce à un ami
Veuillez réessayer à nouveau


























