| NIVEAU | PIÈCE | SURFACE |
- 55 m²
- 3 pièce(s)
- 2 chambre(s)
- NC
Casanova Immobilier vous présente un véritable bijou niché au cœur du centre historique de Montpellier, au pied de l’église Saint-Roch. Cet appartement de charme de 51 m² situé situé au troisième et dernier étage séduit par sa vue imprenable sur les toits et sur l’église Saint-Roch, son atmosphère lumineuse et son cachet unique.
Un emplacement d’exception
Idéalement placé dans le quartier prisé de l’Écusson, à deux pas de la Place de la Comédie, des commerces, restaurants et tramways, cet appartement bénéficie d’un environnement vivant tout en conservant un calme rare.
Une belle distribution
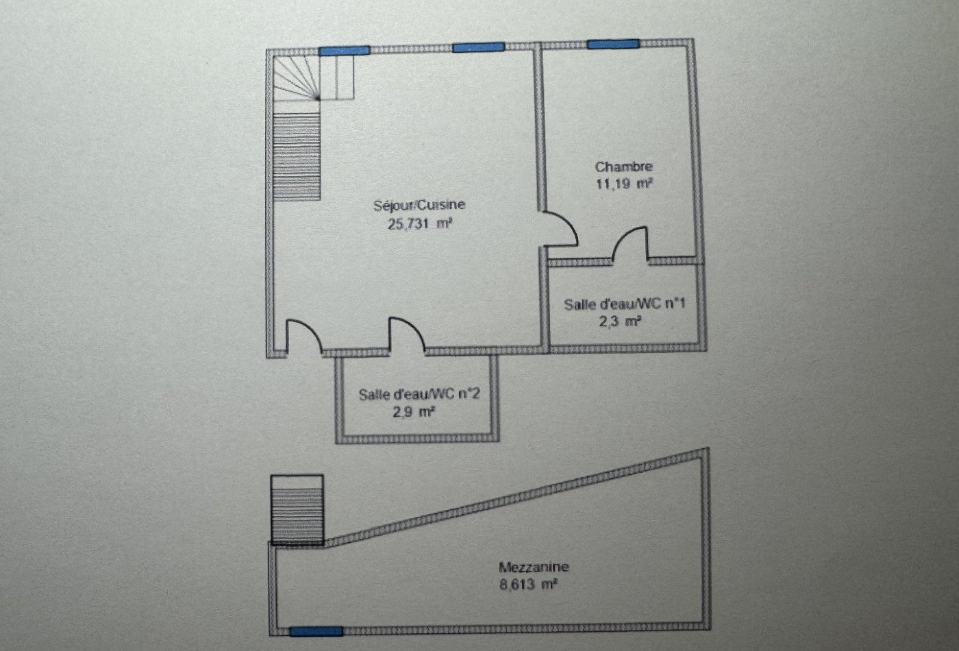
Développant de beaux volumes, il s’organise autour d’un grand séjour baigné de lumière grâce à deux larges fenêtres donnant sur les arbres et les toits de la ville. La cuisine ouverte et équipée s’intègre harmonieusement à l’espace de vie, créant un lieu convivial et chaleureux.
L’espace nuit se compose d’une chambre avec salle d’eau privative et WC, ainsi qu’une seconde salle d’eau indépendante avec wc.
En mezzanine, un espace bureau ou chambre d’appoint bénéficie d’une belle ouverture sur l’extérieur, idéale pour télétravailler ou recevoir.
Atout rare : une terrasse avec vue sur la ville
Un espace terrasse offre une vue dégagée sur Montpellier et sur l’église Saint-Roch, parfait pour profiter du charme du centre ancien en toute intimité.
Confort et prestations
L’appartement est en parfait état : climatisation réversible, double vitrage, isolation récente et plafonds rénovés garantissent un excellent confort de vie.
Un bien rare au cœur de l’Écusson
Un emplacement de choix, une vue exceptionnelle et un charme indéniable font de cet appartement un véritable coup de cœur pour les amateurs d’authenticité et de lumière.
Dossier complet, diagnostics et visite sur demande.
Plus d’infos et visite avec Casanova Immobilier, expert en biens de caractère à Montpellier depuis 45 ans.
Contact : Véronique Loisel 06 15 38 47 17
Notre barème d'honoraires
* Honoraires : 5.30% TTC inclus charge acquéreur (283 000 € hors honoraires).
À proximité de ce bien ...
Découvrez nos biens similaires ...
cette annonce à un ami
Veuillez réessayer à nouveau


































